Biệt thự 1 tầng
Biệt thự 1 tầng là một loại kiến trúc có 1 tầng duy nhất, nó thường có diện tích lớn hơn so với các loại nhà 1 tầng thông thường khác cùng với đó là các kiểu kiến trúc cổ điển, tân cổ điển, nội thất trong nhà cũng đặc biệt và được lựa chọn rất tỉ mĩ.
Biệt thự 1 tầng
Kinh tế đất nước ngày càng phát triển, những tiện ích xung quanh cũng ngày một hiện đại hơn và nhà không chỉ còn là nơi để ở mà ngôi nhà còn là một tác phẩm nghệ thuật. Ngày nay những hộ gia đình có tài chính tốt luôn muốn có không gian sống hiện đại, với phần đất rộng rãi cùng sân vườn thoáng mát, biệt thự 1 tầng là lựa chọn số một của các gia chủ, Biệt thự 1 tầng là một loại kiến trúc có 1 tầng duy nhất, nó thường có diện tích lớn hơn so với các loại nhà 1 tầng thông thường khác cùng với đó là các kiểu kiến trúc cổ điển, tân cổ điển, nội thất trong nhà cũng đặc biệt và được lựa chọn rất tỉ mĩ.

Biệt thự 1 tầng được thiết kế theo hướng tân cổ điển với mong muốn kết nối không gian sống trong cùng 1 tầng, các phòng phải bố trí hợp lí mặc dù là không gian của từng thành viên trong gia đình nhưng vẫn có sự kết nối với nhau.
1. Lưu ý khi thiết kế biệt thự 1 tầng
- Vị trí xây dựng biệt thự 1 tầng: Gia chủ có ý định xây dựng biệt thự thường có khoảng đất rộng lớn vì vậy cần kiểm tra phong thủy và chọn vị trí xây biệt thự, khu vườn, bể bơi sao cho phù hợp. Gia chủ nên tham khảo ý kiến của các chuyên gia phong thủy, nhà thầu và đơn vị thiết kế để có một không gian phù hợp nhất mang lại vận khí tốt cho cả gia đình.
- Vị trí gara, chỗ để xe: đối với những căn biệt thự 1 tầng thì gara cũng là nơi tốn nhiều ý tưởng và tâm sức thiết kế của chủ nhà và đội ngũ nhân viên. Chủ nhân của những căn biệt thự thường có nhiều ô tô, xế hộp nên cần một nơi để bảo quản chúng. Gara thường được thiết kế hình chữ nhật để tối ưu diện tích, chiều cao của gara không chỉ mang tính thẩm mĩ mà còn mang đến độ thoáng và tính hữu dụng khi ô tô di chuyển ra vào vì vậy cần phải thiết kế cẩn thận.
2. Lưu ý khi thiết kế biệt thự 1 tầng có bể bơi
Vị trí hồ bơi
- Hướng đông và đông nam là vị trí tốt để xây bể bơi vì theo phong thủy vị trí này dễ hút năng lượng thịnh vượng cho ngôi nhà
- Thường bể bơi được đặt trước biệt thự do có quan niệm rằng nước ở trước nhà thì mang lại nhiều tài lộc cho gia chủ. Bể bơi đặt trước nhà cần lưu ý không làm chắn lối đi lại, tạo vẻ thẩm mĩ cho căn biệt thự.
- Bể bơi đặt phía sau nhà cùng với sân vườn rộng tạo thành nơi vui chơi, sinh hoạt chung cho cả gia đình. Với vị trí bể bơi và sân vườn như này có thể tổ chức tiệc nướng ngoài trời và bơi lội vào những ngày thời tiết đẹp.
Hình dáng bể bơi:
- Theo phong thủy hình dáng phù hợp nhất là những hình cong có uốn lượn, hình bầu dục và phải mang lại tính thẩm mĩ cao cho không gian sân vườn của biệt thự.
Tỷ lệ bể bơi:
- Bể bơi được thiết kế là vận thủy mang lại tài lộc cho gia chủ nhưng để tránh thiết kế hồ bơi quá rộng so với căn biệt thự thì bể bơi gia đình thường được thiết kế có chiều dài từ 10m đến 15m, chiều rộng từ 5m đến 10m tùy vào nhu cầu sử dụng của gia chủ.
- Hồ bơi được chia làm 2 khu vực : khu hồ bơi của trẻ em có độ sâu từ 0,3 đến 1,2m còn khu hồ bơi dành cho người lớn có độ sau từ 1m đến 2m.
3. Những yếu tố về phong thủy cần lưu ý khi xây biệt thự 1 tầng
- Biệt thự khác với những mẫu nhà thông thường, biệt thự 1 tầng không chỉ là sự hài hòa giữa cách bố trí các phòng trong nhà mà còn là sự hài hòa giữa tổ hợp nhà, sân vườn, hồ nước, tiểu cảnh. Nên trong việc xây dựng biệt thự 1 tầng chúng ta cần lưu ý những đặc điểm riêng về phong thủy:
Yêu cầu về thế đất: cần lựa chọn một khu đất tốt để an vị khuôn viên của toàn bộ công trình, thế đất tốt cần có địa mạch tốt có khả năng quay nhà về hướng đón được cát tinh tốt nhất, long mạch tốt đảm bảo cho không gian chung của biệt thự nhận được cát khí còn hướng tốt thì đảm bảo sắp đặt được môn, chủ, táo, thờ vào vị trí thịnh vượng trong thời gian lâu dài nhất có thể.
Tùy từng thế đất thì có thể xây dựng, thiết kế nội thất bên trong biệt thự nhiều cách khác nhau. Có thể chia làm 2 mục chính là tối ưu phong thủy biệt thự với thế đất dốc và phong thủy biệt thự với thế đất bằng phẳng.
- Phong thủy biệt thự với thế đất dốc: xây dựng mặt tiền của biệt thự nhìn xuống dốc còn lưng của biệt thự tựa vào thế dốc, thế tiến long, tượng trưng cho gia đình, sự nghiệp luôn có chỗ dựa vững chắc, có lợi cho sự phát triển sự nghiệp trong tương lai cả các thành viên trong gia đình.
- Phong thủy biệt thự với thế đất bằng phẳng: đất bằng phẳng có khả năng chịu lực tốt hơn, chọn đất để xây dựng biệt thự nên chọn khu đất cao ráo, thoáng đãng tránh chọn khu đất thấp vì nó dễ bị lụt khi mùa mưa, dễ sinh ra ẩm mốc tạo sự tiêu cực cho sức khỏe.
4. Cách bố trí các phòng trong biệt thự 1 tầng
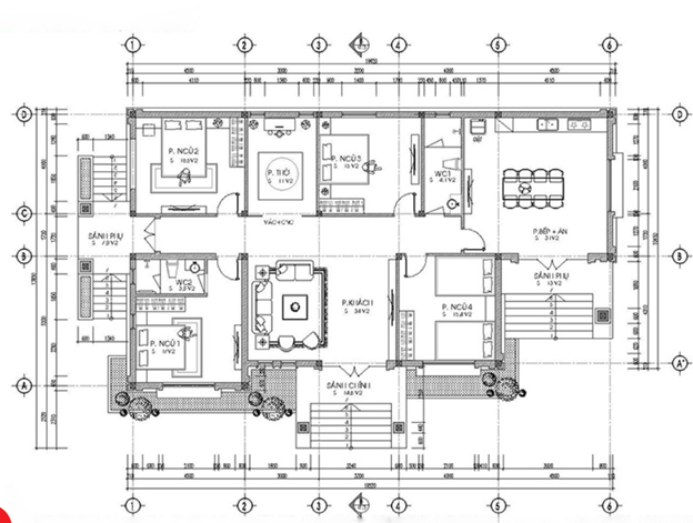
4.1. Biệt thự 1 tầng 4 phòng ngủ
Những gia chủ có khu đất rộng và muốn xây biệt thự 1 tầm khoảng 200m2 có công năng gồm 1 phòng khách, 1 phòng thờ, 1 phòng bếp ăn, 4 phòng ngủ và 2 phòng vệ sinh.
Với phong cách tân cổ điển, biệt thự được thiết kế 2 sảnh chính và phụ dẫn vào phòng khách và bếp ăn. Phòng khách là nơi tiếp những vị khách đến chơi nhà, là nơi toát nên vẻ đẹp, phong cách sống của chủ nhà nên thường đặt những chiếc sofa hoặc bàn ghế gỗ lớn và cũng không kém phần sang trọng, các đồ nội thất khác cũng được gia chủ lựa chọn rất tỉ mỉ. Đối với phòng ăn, nơi cả gia đình xum họp ăn uống sẽ đặt 1 bộ bàn ăn lớn ở giữa phòng bếp, sát tường thiết kế bếp nấu và hệ tủ rộng rãi để đặt đồ dùng nhà bếp và các thiết bị hỗ trợ nấu ăn.
Phòng thờ được thiết kế riêng biệt, quay ra hướng mặt tiền của căn nhà theo đúng phong thủy. Bốn phòng ngủ cùng nằm trên một mặt bằng nên rất thuận tiện cho các thành viên trong việc đi lại và sinh hoạt hằng ngày giúp cho gia đình càng gần gũi với nhau hơn.
Biệt thự với 4 phòng ngủ thích hợp cho gia đình có đông thành viên, các phòng ngủ có kích thước rất tương đồng nhau và thường được bố trí cửa sổ nên không gian rất thoáng mát.
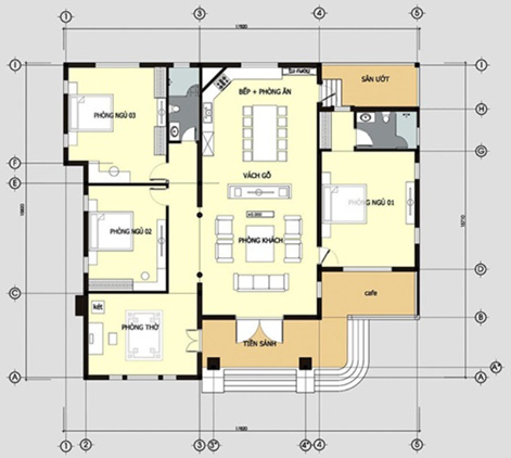
4.2. Biệt thự 1 tầng 3 phòng ngủ
Biệt thự có 3 phòng ngủ dành cho gia đình từ 4 đến 5 thành viên, có diện tích đâu đó khoảng 140m2 tùy vào diện tích đất và nhu cầu sử dụng của gia chủ.
- Với thiết kế gồm 2 sảnh, biệt thự 1 tầng 3 phòng ngủ có sảnh chính dẫn vào phòng khách và sảnh phụ hướng đi vào phòng ăn. Phòng khách hướng ra mặt tiền đón nhiều ánh sáng tự nhiên, với thiết kế của biệt thự thường đươc trang trí bằng những nội thất sang trọng, thiết kế cầu kì giúp ngôi nhà có những đặc trưng riêng biệt.
- Phòng khách và phòng bếp ở giữa biệt thự với xung quanh là 3 phòng ngủ tạo nên sự ấm cúng, giúp các thành viên trong gia đình khi di chuyển và sinh hoạt sẽ gắn kết với nhau hơn. Với phòng ngủ master cho vợ chồng có thiêt kế thêm không gian tắm và toilet ở trong phòng rất tiện nghi.
5. Trang bị thiết bị nhà thông minh cho Biệt thự 1 tầng
- Ngày nay với sự phát triển của công nghệ việc trang bị thiết bị nhà thông mình đối với mỗi ngôi nhà rất dễ dàng và đặc biệt với mẫu Biệt thự 1 tâng thì không thể thiếu biết bị nhà thông minh.
- Với ưu điểm vượt trội của thiết bị nhà thông mình mà thiết bị điện thông thương không thể có như: Điều khiển từ xà qua smart phone, điều khiển bằng giọng nói, cảnh báo trộm, cảnh báo rò điện..hoặc có thể sáng tạo mọi kịch bản điểu khiển mọi thiết bị điện trong nhà như: đèn, quạt, tivi, máy lạnh, rèm, cửa cuốn, robot lau nhà... theo ý của gia chủ.
Viết bài: Ngọc Bích


Xem thêm