Nhà 2 tầng mái thái
Nhà 2 tầng mái thái là một kiểu kiến trúc độc đáo và đẹp mắt, phổ biến ở nhiều nước đông nam á, ở Việt Nam cũng không ngoại lệ. Với sự kết hợp giữa truyền thống và hiện đại, nhà 2 tầng mái thái mang lại không gian ấm cúng và sang trọng.
Với thiết kế 2 tầng, tầng trệt thường là nơi sinh hoạt chung cho gia đình như phòng khách, nhà bếp còn tầng lầu được bố trí các phòng ngủ và phòng thờ. Thiết kế đặc trưng của nhà mái thái thường là sự kết hợp hòa quyện giữa thiên nhiên và kiến trúc.
Nhà 2 tầng mái thái
Nhà 2 tầng mái thái là một kiểu kiến trúc độc đáo và đẹp mắt, phổ biến ở nhiều nước đông nam á, ở Việt Nam cũng không ngoại lệ. Với sự kết hợp giữa truyền thống và hiện đại, nhà 2 tầng mái thái mang lại không gian ấm cúng và sang trọng.
Với thiết kế 2 tầng, tầng trệt thường có thiết kế là nơi sinh hoạt chung cho gia đình như phòng khách, nhà bếp còn tầng lầu thường được bố trí các phòng ngủ và phòng thờ. Thiết kế đặc trưng của nhà mái thái thường là sự kết hợp hòa quyện giữa thiên nhiên và kiến trúc.
1. Những lưu ý khi xây nhà 2 tầng mái thái
- Tìm hiểu kiến thức về mái thái, tính năng và yếu tố quan trọng của nó sẽ giúp bạn hiểu rõ hơn về cách thiết kế và xây dựng một ngôi nhà mái thái. Độ dốc tối thiểu của mái thái là 30 độ, độ dài của mái thái tối đa là 10 mét, mái dốc từ 45 độ đến 60 độ không giới hạn chiều xuôi mái.
- Khi lợp nhà mái thái phải lợp từ dưới lên trên, từ phải sang trái. Hàng đầu tiên của mái thái phải được thi công kĩ lưỡng, tỉ mĩ để cho các hàng sau lấy làm chuẩn. Cần tạo ra khoảng trống vừa đủ và khoảng cách hợp lí, tránh tình trạng mái lợp quá sát nhau.
- Lựa chọn kiến trúc sư và nhà thầu có kinh nghiệm trong xây dựng nhà 2 tầng mái thái, họ sẽ có hiểu biết để thi công xây dựng một ngôi nhà mái thái có chất lượng tốt nhất.
- Tìm hiểu xem các quy định của địa phương về diện tích đất, tỷ lệ xây dựng, chiều cao tối đa và các quy định khác về xây dựng để tuân thủ theo.
2. Các kiểu thiết kế phổ biến của nhà 2 tầng mái thái
Nhà 2 tầng mái thái 3 phòng ngủ
- Với nhu cầu sử dụng là 3 phòng ngủ gia chủ có thể bố trí như sau:
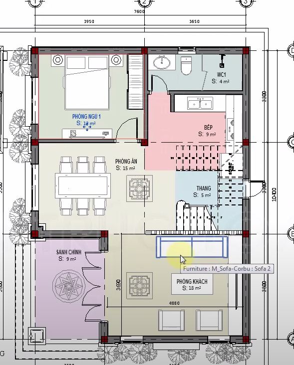
Tầng trệt gồm phòng khách, phòng ăn, nhà bếp, phòng ngủ 1 và 1 nhà tắm, 1 nhà vệ sinh.
Tầng lầu gồm phòng thờ, phòng ngủ 2 và phòng ngủ 3. Tùy vào nhu cầu sử dụng mà gia chủ có thể thiết kế nhà tắm và nhà vệ sinh riêng trong phòng ngủ hoặc nhà vệ sinh chung ở ngoài dể dùng cho cả 2 phòng ngủ trên lầu.
Nhà 2 tầng mái thái 3 phòng ngủ có không gian sống rỗng rãi, thoải mái phù hợp cho gia đình 4-5 thành viên.
Nhà 2 tầng mái thái 4 phòng ngủ
- Với số phòng ngủ là 4 khá thoái mái cho những gia đình nhiều thế hệ, đông thành viên. Thiết kế là nhà mái thái nên sẽ làm cho căn nhà cao thoáng và rỗng rãi hơn, mặt tiền cũng rất bắt mắt.
- Những kiểu bố trí thường bắt gặp khi nhà 2 tầng có 4 phòng ngủ gồm:
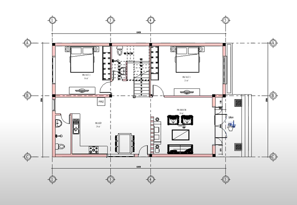
Tầng trệt vẫn luôn là nơi sinh hoạt chung, phòng khách, phòng ăn nhà bếp là chỗ để các thành viên trong gia định tụ họp ăn uống, trò chuyện. Để tối ưu diện tích gia chủ có thể bố trí phòng ngủ 1, phòng ngủ 2 ở ngay khu tầng trệt phù hợp dùng cho ông bà, bố mẹ đã lớn tuổi, hạn chế leo cầu thang.
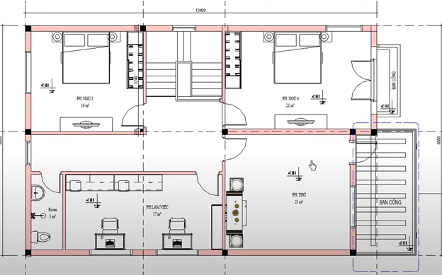
Tầng lầu ở đây sẽ bố trí 1 phòng thờ ngay phía trên phòng khách, phòng ngủ 3 , phòng ngủ 4 và 1 phòng làm việc. Đối nhà vệ sinh thì bố trí phía ngoài 1 nhà tắm, 1 nhà vệ sinh dùng chung cho 2 phòng ngủ.
3. Cách giúp tiết kiệm chi phí khi xây dựng
- Hiểu rõ tài chính của bản thân, xây nhà với diện tích phù hợp.
- Tìm nhà thầu, đội thợ thi công chất lượng, giá cả hợp lí. Khi thỏa thuận làm việc với nhà thầu cần đưa ra điều khoản rõ ràng, chi tiết về thời gian thi công và chi phí làm việc.
- Chọn thiết kế nhà tiết kiệm chi phí, chọn nhà cung cấp và loại vật liệu có giá thành và chất lượng phù hợp. Đối với vật tư thô như xi măng, thép.. không nên quá tiết kiệm vì sẽ ảnh hưởng đến chất lượng tuổi thọ của công trình. Vật tư hoàn thiện như vòi sen, bệ toilet, nội thất… có thể sử dụng loại bình thường không cần quá cao cấp để giúp tiết kiệm chi phí.
- Nên chọn thời điểm xây nhà vào mùa khô để thời gian hoàn thiện nhanh hơn, tiết kiệm chi phí nhân công.
- Để tiết kiệm chi phí và đỡ mất thời gian chủ nhà có thể nhờ đơn vị tư vấn thiết kế giúp làm hồ sơ xin giấy phép xây dựng.
Viết bài: Ngọc Bích







Xem thêm