Nhà cấp 4 gác lửng 2 phòng ngủ
Nhà cấp 4 gác lửng 2 phòng ngủ là kiểu nhà được xây dựng gồm 1 trệt và 1 gác lửng giúp tiết kiệm diện tích và chi phí xây dựng. Mẫu nhà cấp 4 gác lửng 2 phòng ngủ được xây dựng phổ biến ở nông thôn và ngoại ô thành phố, những nơi có thu nhập vừa phải. Những cặp vợ chồng mới cưới muốn có không gian sinh hoạt riêng tư của mình thì nhà cấp 4 gác lửng 2 phòng ngủ là lựa chọn thích hợp và hợp lí, ngôi nhà sẽ là nơi vun vén hạnh phúc gia đình và là nơi sinh sống, lớn lên của con cái.
Nhà cấp 4 gác lửng 2 phòng ngủ
Nhà cấp 4 gác lửng 2 phòng ngủ là kiểu nhà được xây dựng gồm 1 trệt và 1 gác lửng giúp tiết kiệm diện tích và chi phí xây dựng. Mẫu nhà cấp 4 gác lửng 2 phòng ngủ được xây dựng phổ biến ở nông thôn và ngoại ô thành phố, những nơi có thu nhập vừa phải. Những cặp vợ chồng mới cưới muốn có không gian sinh hoạt riêng tư của mình thì nhà cấp 4 gác lửng 2 phòng ngủ là lựa chọn thích hợp và hợp lí, ngôi nhà sẽ là nơi vun vén hạnh phúc gia đình và là nơi sinh sống, lớn lên của con cái.
1. Những thứ cần lưu ý trước khi xây nhà
- Lập dự toán, tính toán xem chi phí xây dựng là bao nhiêu để chuẩn bị. Tính toán các khoản chi phí vật liệu xây dựng, nhân công, những khoản phát sinh thêm.
- Chọn vật liệu kĩ càng để làm sao vừa đảm bảo an toàn, chất lượng mà vẫn tiết kiệm chi phí.
- Lập tiến độ thi công để biết hoàn thành trong bao lâu, biết các đầu công việc phải làm hôm đó để bố trí nhân công, kiểm tra thời tiết.
- Nên tránh xây dựng vào mùa mưa để có hiệu quả tốt nhất.
- Nhà gác lửng cần được thiết kế thông thoáng, nhận được ánh sáng tự nhiên và không khí, gió từ ngoài trời.
- Nội thất nhà gác lửng cần được thiết kế tối ưu, phù hợp với không gian có gác lửng. Lưu ý nên chọn những nội thất không chiếm quá nhiều diện tích để cho nhà có không gian rộng rãi, thuận tiện di chuyển, đi lại.
2. Ưu điểm của nhà cấp 4 gác lửng 2 phòng ngủ
- Không gian sống rộng rãi phù hợp cho những đôi vợ chồng mới cưới, những gia đình từ 2 đến ba thành viên.
- Tách biệt được không gian sinh hoạt chung khi bố trí 2 phòng ngủ trên gác lửng, ở dưới trệt bố trí phòng khách, nhà bếp…
- Thiết kế thông minh giúp tiết kiệm chi phí xây dựng, với những hộ gia đình đông người nhưng không có điều kiện xây nhiều tầng lầu thì gác lửng là một giải pháp cực kì tối ưu.
3. Bố trí cầu thang
- Mỗi gia chủ có ý muốn bố trí cầu thang khác nhau, thường đối với nhà cấp 4 gác lửng thì cầu thang được bố trí ở phòng khách hoặc phòng bếp để tối ưu diện tích.
- Cách bố trí cầu thang gác lửng cũng được gia chủ chú ý về phong thủy. Vị trí đặt cầu thang không nên đặt thẳng hướng cửa ra vào, số các bậc thang nên rơi vào số Sinh trong 4 yếu tố Sinh- Lão- Bệnh- Tử.
- Cầu thang nên đặt ở vị trí thoáng đãng, tránh đặt cầu thang ở vị trí cuối nhà.
- Muốn phong thủy đẹp nên bố trí cho cầu thang ở các cung như Đào hoa, Thiên mã, Dương quý nhân, Thiên nhật. Nên tránh các cung như Thiên hình, Đại sát…
- Nên bố trí và đặt cầu thang ở nơi có nhiều ánh sáng, tránh đặt cầu thang ở chính giữ ngôi nhà.
- Cách tính số bậc cầu thang theo chiều cao tầng:
Số bậc = chiều cao tầng / chiều cao bậc thang
(chiều cao bậc thang nằm trong khoảng từ 15 – 18 cm)
- Chọn chiều ngang bậc thang từ 0.9m – 1.2m, chiều rộng bước thang từ 24cm – 30cm. Chiều cao của lang cang từ 85- 90cm
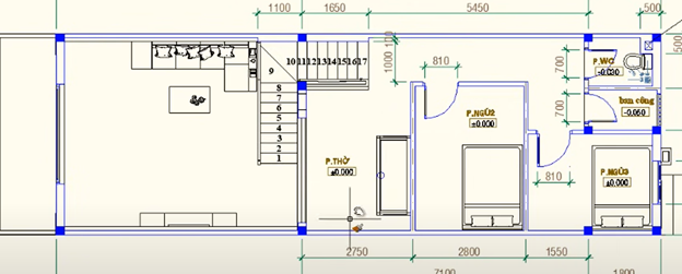
4. Một số hình ảnh về nhà cấp 4 gác lửng 2 phòng ngủ
- Mặt bằng bố trí tổng thể
- Mẫu nhà cấp 4 gác lửng 2 phòng ngủ bố trí cấu thang đi lên từ phòng khách
- Mẫu nhà cấp 4 gác lửng 2 phòng ngủ bố trí cấu thang đi lên từ phía sau
Một số kinh nghiệm để tiết kiệm chi phí trong xây dựng nhà cấp 4 gác lửng 2 phòng ngủ
- Thiết kế hợp lí phù hợp với nhu cầu sử dụng của gia đình, vừa đảm bản tính thẩm mĩ, vừa tiết kiệm chi phí.
- Sử dụng vật liệu phù hợp, tránh các vật liệu như gỗ thay vào đó hãy dung những vật liệt khác dễ tìm với chi phí tiết kiệm hơn.
- Khi xây dựng phải tìm hiểu và tính toán kỹ càng để dự trù kinh phí một cách chính xác, không bị phát sinh thêm chi phí khi xây dựng.
- Lựa chọn đơn vị thi công uy tín sẽ giúp công trình của bạn hoàn thiện nhanh chóng, đảm bảo về chất lượng.
Viết bài: Ngọc Bích




Xem thêm